Development at Primula Cottage

About Project Project: Primula Cottage Torphicen Client: Private Home Owners Information: Development site Primula Cottage Torphichen The new owners of Primula Cottage commissioned us to explore the feasibility of obtaining planning permission for a new house within the large garden ground associated with their house. The garden of the house was traversed by the Torphichen…

Bathgate Golf Club

About Project Project: Bathgate Golf Club Client: Bathgate Golf Club Information: Bathgate Golf Club – Improvements to member facilities. General scheme of upgrading and improvement of member facilities within the Golf Club at Bathgate Development cancelled due to financial recession Client Testimonial: Sed bibendum convallis sem. Nunc ac hendrerit tortor. Nullam non feugiat quam. Integer…

Glasgow Road Bathgate

About Project Project: Glasgow Road Bathgate Client: Private Home Owners Information: Upgrading and extension of a single storey detached cottage to create a 4 bedroom family home with the emphasis on flexible living Client Testimonial: Sed bibendum convallis sem. Nunc ac hendrerit tortor. Nullam non feugiat quam. Integer id vehicula velit. Curabitur odio lectus, pellentesque…

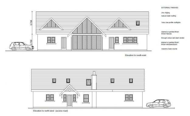
Cathlaw Grange

About Project Project: Cathlaw Grange by Torphichen Client: Private Home Owners Information: Creation of a bespoke design passive and energy efficient home within the Bathgate Hills area with a three dimensional form reflecting the previous water storage building use of the site Client Testimonial: Sed bibendum convallis sem. Nunc ac hendrerit tortor. Nullam non feugiat…

Denholm Blackridge

About Project Project: Denholm Blackridge - Extension Client: Private Home Owners Information: Creation of a simple 2 storey side extension that is designed to meet the clients’ brief on a particularly tight site and to reflect the simple post-war architecture of the area Client Testimonial: Sed bibendum convallis sem. Nunc ac hendrerit tortor. Nullam non…

Gowanbank Garage

About Project Project: Domestic Garage at Gowanbank house Client: Private Home Owners Information: Design created for a garage with a hobby/play room within the roofspace. The design was formulated to reflect the design tools used by Sir James Gowans within his extension design for his own home, the ‘A’ listed mansion house at Gowanbank. Client…

Grahams Road – Falkirk

About Project Project: Commercial / residential development site Falkirk Client: commercial property developer Information: We explored this development site in Grahams Road for the benefit of a commercial property developing client. Client Testimonial: Sed bibendum convallis sem. Nunc ac hendrerit tortor. Nullam non feugiat quam. Integer id vehicula velit. Curabitur odio lectus, pellentesque et sem…

Mid Street Bathgate

About Project Project: South Hill Steadings Client: Private Home Owners Information: Davidson Associates were commissioned by Surveylink Projects Ltd to provide a bespoke design service to convert what was previously a single storey flat roofed sixties office building within the centre of Bathgate We quickly realised the potential of creating additional accommodation whilst at the…

West Murdieston

About Project Project: Feasibility study to replace disused former ‘bothy dwelling’ West Murdieston, Ballinton Road by Thornhill FK8 3QE Client: Mr & Mrs Brian Mayberry Initial Briefing Information: West Murdieston comprises a former farming unit which is currently used for private equestrian facilities. The site comprises a detached and extended former farmhouse with garaging, various…

Turpie House Extension

About Project Project: Turpie House Extension Client: Private Home Owners Info: Examination of roofspace conversion possibilities for a 60’s bungalow in Cathlaw Lane Torphichen Several possible solutions were examined during the process Client Testimonial: Sed bibendum convallis sem. Nunc ac hendrerit tortor. Nullam non feugiat quam. Integer id vehicula velit. Curabitur odio lectus, pellentesque et…