About Project
Project:
Turpie House Extension
Client:
Private Home Owners
Info:
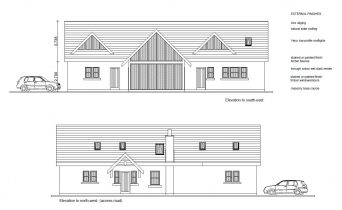
Examination of roofspace conversion possibilities for a 60’s bungalow in Cathlaw Lane Torphichen
Several possible solutions were examined during the process
Client Testimonial:
Sed bibendum convallis sem. Nunc ac hendrerit tortor. Nullam non feugiat quam.
Integer id vehicula velit. Curabitur odio lectus, pellentesque et sem pulvinar, bibendum pharetra orci. Donec in accumsan velit.




